Каталог товаров
- Антисептики и защитные составы
- Арматура, сетка сварная, проволока
- Водосточная система Döcke
- Водосточная система Технониколь
- Герметизирующая лента Технониколь NICOBAND
- Герметик, силикон, клей, шнур, пена, очиститель
- Гидроизоляция, мастика, праймер, мембрана, рубероид, пенетрон
-
Гипсокартонные системы, ПГП, Кнауф-акустика, аквапанели, траверса
- Грунтовки
- Инструмент
- Кирпич, блоки
- Клей паркетный, для обоев и стеклообоев
- Коннекторы FINHA
-
Краски, декоративные покрытия, эмаль, лак, колоранты, растворитель
- Кровельные материалы Döcke, аэратор, планка
- Кровля плоская Технониколь, аэратор, воронка
- Кровля скатная Технониколь, аэратор, планка, колпак, вентиляционный выход
- Мансардные окна
- Металлочерепица, планка
- Напольные и уличные покрытия Döcke, террасная доска
- Напольные покрытия, плитка, ковровое покрытие, порог
- Плёнки, мембраны, фольга, картон
- Плиты OSB, ДСП, ДВП, ЦСП, ГВЛВ, фанера, пиломатериалы, шифер
- Подвесные потолки, комплектующие и светильники
- Профиль CD, UD, уголок, маяк, подвес, краб, крепёж
- Сайдинг Döcke, фибросайдинг DECOVER
- Саморезы, дюбеля, анкеры, гвозди
- Серпянка, скотч, лента, шпагат
- Софиты Döcke, Технониколь
- Стеклотканевые обои под покраску, стеклохолст
- Строительные смеси готовые
- Строительные смеси сухие
- Теплоизоляция, XPS, PIR, пенопласт, керамзит
- Фасадная плитка Hauberk, термопанель, уголок
- Фасадная сетка, фасадный угол
- Фасадные панели Döcke
- Фуга
- Чердачные лестницы
Наши новости
Semin уже в продаже
Для тех заказчиков, для которых качество строительных материалов стоит на первом месте, мы добавили в ассортимент продукты компании. Ассортимент бренда включает в себя продукты для финишного выравнивания поверхностей стен по разным основаниям.
Подписка на новости магазина
Подпишитесь на рассылку и получайте свежие новости и акции нашего магазина.
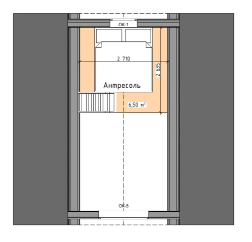
Раздел не найден.
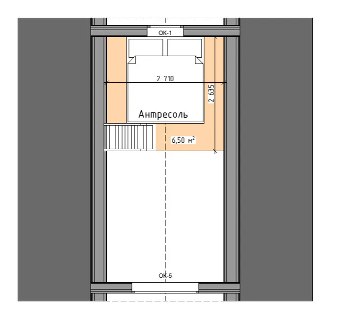
Раздел не найден.
























В корзину
Купить в 1 клик
Нашли дешевле
Рассчитать доставку






Сравнение
В избранное


